CONCEPTUAL DESIGN - SMALL CUSTOM FAMILY HOME

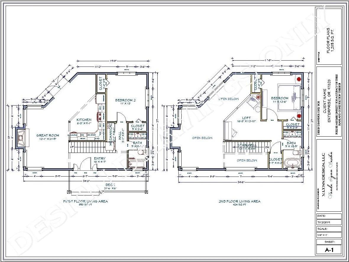
These clients brought me a print out of a home they found on-line that was about 1,900 sq. ft. They liked the overall plan but it lacked a few things and they wanted it to be less than 1,300 sq. ft.!!! So I got creative and this is the result… a 1,285 sq. ft. 2 bed / 2 bath family home with an open-concept great room and huge windows to take advantage of the surrounding mountain views… hoping they build it some day!

VONDA-LYNN-SAXTON-INTERIOR-DESIGNER-JOSEPH-OREGON
VONDA-LYNN-SAXTON-INTERIOR-DESIGNER-JOSEPH-OREGON
VONDA-LYNN-SAXTON-INTERIOR-DESIGNER-JOSEPH-OREGON
VONDA-LYNN-SAXTON-INTERIOR-DESIGNER-JOSEPH-OREGON
 
previous project
next project
 
 
Inspiration Rejuvenation Creation SMALLER CROPPED.png